Phân tích thiết kế Biệt thự Sông Hồng Diamond City – Chuẩn mực kiến trúc sống đẳng cấp
Biệt thự Sông Hồng Diamond City được đánh giá cao nhờ thiết kế đồng bộ, tinh tế và tối ưu công năng, đáp ứng trọn vẹn nhu cầu an cư của giới khách hàng cao cấp. Ngay từ tổng thể kiến trúc đến từng chi tiết mặt bằng, dự án cho thấy sự đầu tư bài bản, hướng tới giá trị sử dụng lâu dài và tính thẩm mỹ vượt thời gian.
Về phong cách kiến trúc, biệt thự Sông Hồng Diamond City lựa chọn ngôn ngữ tân cổ điển châu Âu sang trọng. Các đường nét mềm mại, hệ mái Mansard đặc trưng, cửa vòm lớn và ban công uốn cong tạo nên diện mạo bề thế nhưng không nặng nề. Gam màu sáng kết hợp phào chỉ tinh giản giúp công trình vừa nổi bật, vừa giữ được vẻ thanh lịch, phù hợp với không gian đô thị cao cấp ven sông.
Xét về mặt bằng, mỗi căn biệt thự được thiết kế từ 4 tầng trở lên, bố trí khoa học theo chiều cao nhằm phân tách rõ ràng các khu chức năng. Tầng 1 ưu tiên không gian sinh hoạt chung với phòng khách rộng, bếp – phòng ăn liên thông và gara riêng, tạo sự thuận tiện trong sinh hoạt và tiếp đón. Các tầng trên là khu vực nghỉ ngơi với phòng ngủ master, phòng ngủ phụ đều có WC khép kín, ban công và khu thay đồ, đảm bảo sự riêng tư cho từng thành viên.
Một điểm cộng lớn trong thiết kế biệt thự Sông Hồng Diamond City là khả năng tận dụng ánh sáng và thông gió tự nhiên. Hệ cửa sổ lớn, ban công rộng và khoảng lùi hợp lý giúp không gian bên trong luôn thông thoáng, giảm phụ thuộc vào năng lượng nhân tạo. Điều này không chỉ nâng cao chất lượng sống mà còn góp phần tiết kiệm chi phí vận hành lâu dài.
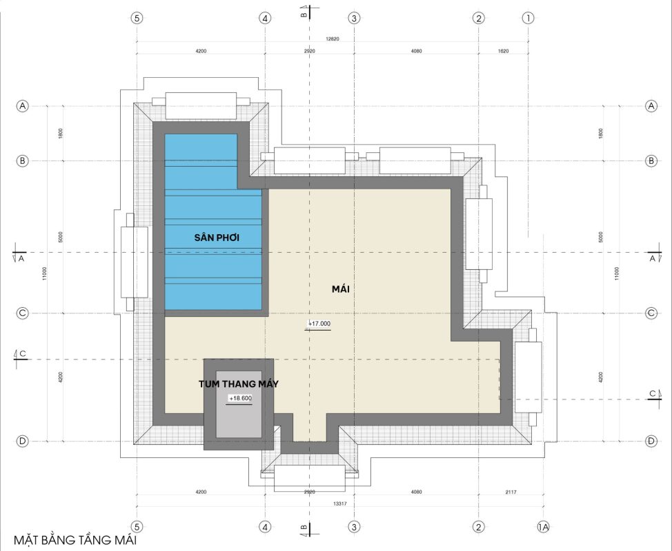
Ngoài ra, tầng trên cùng được bố trí linh hoạt với phòng thờ, phòng sinh hoạt, thể thao và sân phơi, đáp ứng đa dạng nhu cầu sử dụng của gia đình hiện đại. Tổng thể thiết kế hướng tới sự cân bằng giữa thẩm mỹ, công năng và giá trị sử dụng bền vững.
Có thể khẳng định, thiết kế chính là một trong những yếu tố cốt lõi làm nên sức hút của biệt thự Sông Hồng Diamond City, giúp dự án không chỉ đẹp về hình thức mà còn thực sự đáng sống và có giá trị lâu dài theo thời gian.







